Cуддя Ярослав Головачов зачищає інтернет від згадок про розкішну віллу
4 мільйони євро за кіпрську нерухомість судді.
Після появи в медіа інформації про придбання Ярославом Головачовим елітної нерухомості на Кіпрі вартістю 4 мільйони євро в інтернеті почалася помітна зачистка матеріалів, які ставлять під сумнів законність походження цих коштів і доброчесність заступника голови Апеляційного суду м. Києва.
Ми, своєю чергою, публікуємо матеріал, який намагаються витіснити з публічного простору, щоб зберегти факти та показати реальні масштаби активів судді Ярослава Головачова за кордоном.
Опублікована раніше в ЗМІ інформація про придбання заступником голови Апеляційного суду м. Києва Ярославом Головачовим маєтку вартістю 4 мільйони євро в м. Ларнака (Кіпр) отримала офіційне підтвердження.
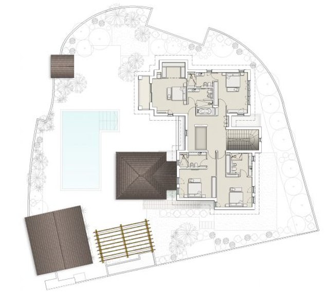
За інформацією, наданою компанією Helios Real Estate Group, Ярослав В’ячеславович Головачов дійсно придбав розкішну віллу з басейном на морському узбережжі Ларнаки. Угоду було укладено в березні 2015 року.
Усього в будинку 10 кімнат, із них 4 спальні. Площа вілли — 570 м², земельної ділянки — 1500 м². Будинок розташований біля самого моря, у престижному місці — районі Перволія, з панорамним видом на Середземне море, всього за 10 хвилин від міжнародного аеропорту і за 15 хвилин від центру Ларнаки. Вартість придбаної Головачовим нерухомості становить 4 000 000 євро.
Крім того, у компанії Helios Real Estate Group повідомили, що кожен покупець елітної нерухомості в їхньому агентстві отримує право на кіпрське громадянство для всіх членів своєї родини. Таким чином, заступник голови Апеляційного суду м. Києва може виявитися громадянином Кіпру.





За матеріалами: Інформаційного агентства «Коментатор».